Dans le Cantal et les départements voisins, l'agence vous propose ses prestations pour votre projet de bâtiment agricole (élevage, stockage...).
Une installation, une reprise de foncier, un besoin de modernisation, une exigence de mise aux normes et le parc bâtiment ne correspond plus. Mais construire un bâtiment agricole n’est pas aussi simple qu’il y parait. Tout d’abord parce qu’il engage le maitre d’ouvrage pour plusieurs années, les techniques adoptées doivent être les bonnes. Il faut aussi se donner du temps pour bien y réfléchir, visiter d’autres installations déjà bien établies et échanger avec leurs utilisateurs.
La nécessité agricole du projet envisagé doit également être établie par la DDT pour que le permis de construire soit accordé. Laurent Sallard, architecte et spécialiste du bâtiment agricole depuis plus de 20 ans apportera toute son expertise pour opérer les meilleurs choix.
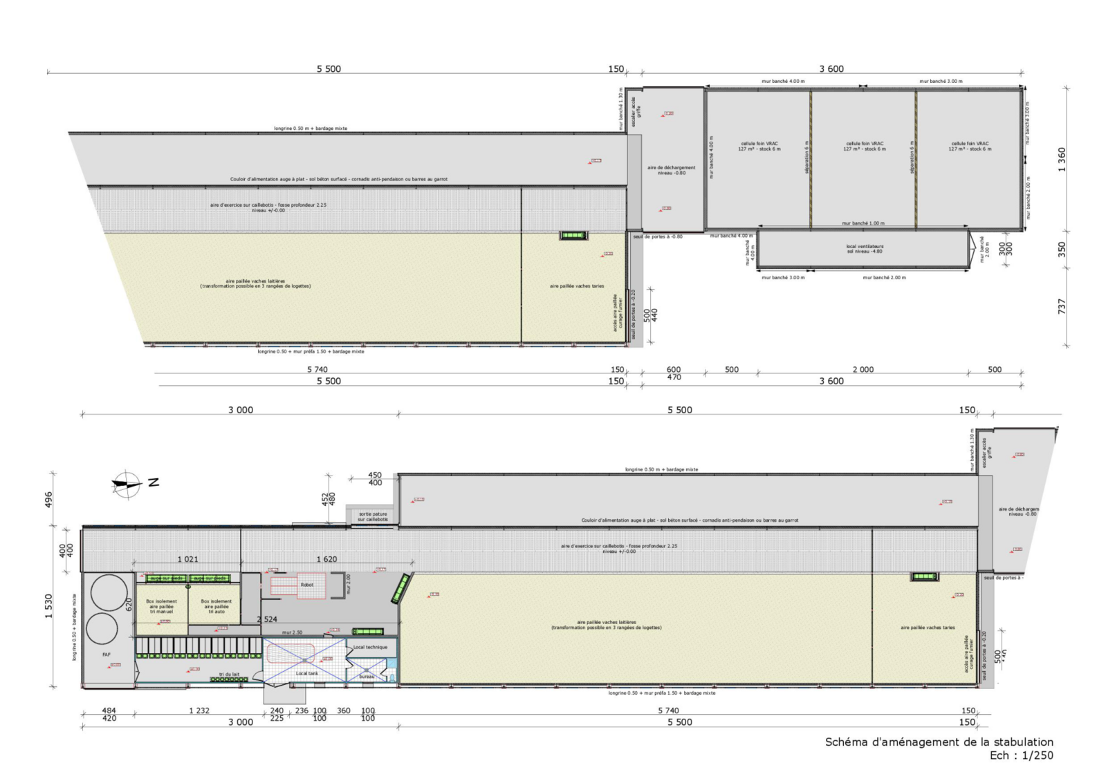
Une visite sur site s’impose d’emblée pour en apprécier ses caractéristiques. L’orientation, la pente du terrain, la nature du sol, les accès, les réseaux, les règles d’urbanisme en vigueur sur la commune, la localisation des tiers, le parcellaire … Autant de critères à aborder pour trouver la meilleure implantation possible.
C’est aussi lors de cette rencontre que les questions du mode de logement des animaux (entravée, aire paillée, logettes, caillebotis …), du type de déjections à gérer (lisier, fumier), de l’installation de traite à installer (type, taille), des équipements de contentions, etc. seront minutieusement étudiées et devront trouver réponse.
Le budget de l’opération en dépend, mais aussi son coût de fonctionnement. C’est pourquoi l'architecte vous remer un avant-projet pour préciser tous ces points avant d’établir le permis de construire.
Il est également possible de vous accompagner dans la création de votre dossier de subvention, n'hésitez pas à contacter l'agence pour avoir plus de précisions.

- Catégorie Agricole



